MEC Engineering GmbH
Kornmattstrasse 7
6460 Altdorf
+41 (0)79 733 07 39
mail@mec-engineering.ch

Beratung
Vom Anlagenbau bis zum Metallbauprojekt
Massgeschneiderte Lösungen unter Einhaltung aller Sicherheitsvorschriften und Normen. Durch unsere praktische Erfahrung bieten wir Produktions- und Montagegerechte Lösungen.

Aufmass und Geomatik
Massaufnahme vor Ort
Mit 3D Messtechnologie ist eine Massaufnahme im Innen- oder Aussenbereich millimetergenau möglich. Massaufnahmen werden wir nach Kundenwunsch aufarbeiten und dienen als Grundlage für eine anschliessende CAD-Planung.

Dokumentation
Weitere Dokumente als Ergänzung unserer Planung
Um eine Projektarbeit zu vervollständigen erstellen wir Stücklisten, Zuschnittslisten, Kaufteillisten, Betriebsanleitungen, Ersatzteillisten, Verkaufsunterlagen und weitere Dokumente für unsere Kunden.

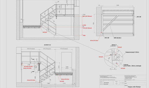
CAD Planung und Statik
Ausführungsplanung mit 3D CAD Software
Mit 3D-CAD Software erstellen wir Zeichnungen für Ihre Produktion und Montage.
Statische Anforderungen können auf Wunsch durch uns berechnet werden lassen.
Ein Datenaustausch mit allen gängigen CAD-Formaten ist möglich.
-
Konzeptzeichnungen
-
Genehmigungszeichnungen
-
Baueingaben
-
Herstellungszeichnungen
-
Montagezeichnungen
-
Baugruppenzeichnungen
-
Brennteile / Laserteilzeichnungen inkl. DXF/DWG



































